Agrès de musculation "Roue de Tai Chi" pour personnes en situation d'invalidité - Aire de street workout et parcours sportif
Une question sur ce produit ?
Bonjour, je suis votre assistant virtuel 💪
Quelle est votre question ?
-
Matériel de qualité professionnelle
Conçu pour durer et performer
-
Garantie constructeur
Protection assurée sur l’ensemble de nos équipements
-
Paiement sécurisé
Carte Bleue / Virement / 2x 3x 4x 10x 24x
-
Livraison chez vous
transporteur spécialisé sur prise de rendez-vous
-
Marque française
Expertise et SAV basés en France
-
Satisfaction Client
Note moyenne ★ 4,7/5
Equipement de fitness en plein air pour personnes en situation de handicap - Aire de street workout :
L'utilisation de l'atelier de fitness extérieur pour handicapés :
Cet équipement sportif extérieur est spécialement conçu pour être utilisé par des personnes à mobilité réduite. En effet, la construction de cet agrès de fitness pour personnes invalides laisse place à un fauteuil roulant. Cette roue de fitness outdoor est idéale pour être installée dans un espace de sport en plein air et saura satisfaire les besoins des mairies et des collectivités territoriales. Cet agrès de musculation pour aire de fitness permet à son utilisateur de renforcer, développer et améliorer muscles des bras. De plus, la station de sport outdoor pour PMR améliore l'efficacité globale des articulations bras, poignets, coudes et clavicules.
L'utilisation de la roue de musculation extérieure pour mobilité réduite est très simple, il suffit de se servir des poignées en caoutchouc, puis, tournez dans un sens ou l'autre. Chaque utilisateur quels que soient leurs niveaux peut utiliser cette structure de musculation outdoor et de tout âge.
Les différents espaces et lieux où intégrer l'appareil de musculation en plein air pour sport adapté :
Pour un choix d'accessibilité, les communes et les municipalités peuvent décider d'installer cet agrès de fitness pour donner accès au sport adapté pour les personnes en situation de handicap. Les zones de fitness outdoor en libre accès pour les handicapés sont également très populaires au sein des universités et des résidences de vacances.
Installer une aire de street workout pour mobilité réduite dans sa ville présente de nombreux avantages. Tout abord, avec l'équipement de conditionnement physique outdoor, vous allez favoriser le lien social en créant un espace de rencontre. En plus, l'agrès de musculation pour handicapés en fauteuil roulant stimule l'exercice physique, le gain musculaire et surtout évite la sédentarité.
- Collectivités communales
- Administrations
- Municipalités
- Résidences de vacances
- Campings
- Universités
- Parcs / Jardins / Lacs
Informations essentielles à propos de l'équipement sportif pour mobilité réduite : Garantie - Sécurité - Installation - Livraison :
Les garanties liées à l'équipement sportif en plein air pour mobilité réduite:
- 20 ans : Structurelle
- 5 ans : Peinture
- 2 ans : Pièces mobiles
Les critères de sécurité de l'agrès de fitness pour parcours sportif :
En tant qu'administration ou collectivité, il est essentiel d'assurer la sécurité de votre espace de sport en plein air à mobilité réduite. Pour cela, notre structure de musculation extérieure est conçue selon la norme EN 16630:2015 garantissant la sécurité d'une installation extérieure publique.
Pour accentuer le critère de sécurité de votre agrès de fitness pour personnes handicapées, il est nécessaire d'installer du revêtement de sol aux normes autour de votre matériel. Ici, pour la roue à épaules outdoor, il faut compter un périmètre de sécurité de 355 x 365 cm.
Cette station de sport extérieure est entièrement fabriquée en acier galvanisé et en aluminium s'assurant de la robustesse et de la stabilité de celle-là. Grâce à sa composition, l'agrès de sport pour parcours santé garantit une excellente résistante à l'usure et aux intempéries.

Comment installer l'équipement sportif extérieur pour street workout ?
La station épaules en plein air est fixée à une base via des ancrages à bétonner (les ancrages et les vis nécessaires sont fournis avec l'appareil commandé). L'installation de la roue de fitness outdoor est simple et vous pouvez le faire vous-même (nous fournissons un manuel d'utilisation détaillé). Bien sûr, vous pouvez également faire appel à une entreprise de sous-traitance pour installer votre équipement sportif en plein air pour mobilité réduite.
La livraison de l'équipement de musculation et fitness extérieur :
La livraison de l'agrès de fitness outdoor pour personnes invalides est opérée par une compagnie de transport spécialisée s'assurant du conditionnement de la marchandise tout au long de son parcours jusqu'à chez vous.
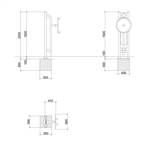
Caractéristiques techniques de la station de street workout pour personnes en situation de handicap :
- Longueur : 47 cm
- Largeur : 65 cm
- Hauteur : 2,02 mètres
- Taille de l'utilisateur : < 140 cm
- Poids max de l'utilisateur : 150 kg
- Poids de l'appareil : 35 kg
- Zone de sécurité : 355 x 365 cm
- Compatible avec la norme : EN 16630:2015
- Mono-utilisateur
- Composition : Acier
- Plateau : Aluminium
- Résistance aux intempéries
